1. Pengenalan
This manual provides essential information for the safe and efficient operation of your Sodeca CJTX-C-7/7-0,75 Industrial Box Fan. Please read it thoroughly before installation, operation, or maintenance. This unit is designed for demanding industrial applications, specifically for smoke extraction at high temperatures.
2. Maklumat Keselamatan
Safety is paramount when operating industrial machinery. Adhere to all local and national electrical and safety codes. Only qualified personnel should perform installation, maintenance, and repairs.
- The unit is designed for 400°C/2h extraction, with the motor and transmission located inside the casing, intended for operation outside fire risk zones.
- Ensure proper electrical connections are made by a certified electrician. The fan operates on three-phase power: 230/400V-50Hz (up to 4kW) and 400/690V-50Hz (above 4kW).
- The motor has IP55 protection. Ensure the installation environment is suitable for this rating.
- This product is approved according to EN 12101-3 standard, with certification No: 0370-CPR-0468. Compliance with this standard is crucial for fire safety applications.
- Always disconnect power before performing any inspection, cleaning, or maintenance.
- Jangan kendalikan kipas jika mana-mana bahagian rosak atau hilang.
3. Produk Lebihview dan Komponen
The Sodeca CJTX-C-7/7-0,75 is a robust industrial box fan designed for high-temperature air extraction. Its construction ensures durability and reliable performance in challenging environments.
Ciri-ciri Utama:
- Struktur: Constructed from galvanized steel sheet for corrosion resistance.
- Pendesak: Forward-curved blades, made of galvanized steel sheet, ensuring efficient airflow.
- Motor: Class F motors with ball bearings, IP55 protection. Available in 1 or 2 speeds depending on the model. IE3 efficiency motors for powers equal to or greater than 0.75kW (except single-phase, 2-speed, and 8-pole models).
- Arah Aliran Udara: Linear.
- Julat Suhu: S1 service: -20°C to +120°C continuous. S2 service: 300°C/2h and 400°C/2h.
- Selesai: Anticorrosive galvanized steel.

Figure 1: Sodeca CJTX-C-7/7-0,75 Industrial Box Fan. This image shows the robust, galvanized steel casing of the industrial fan, with the air inlet visible on the front face.

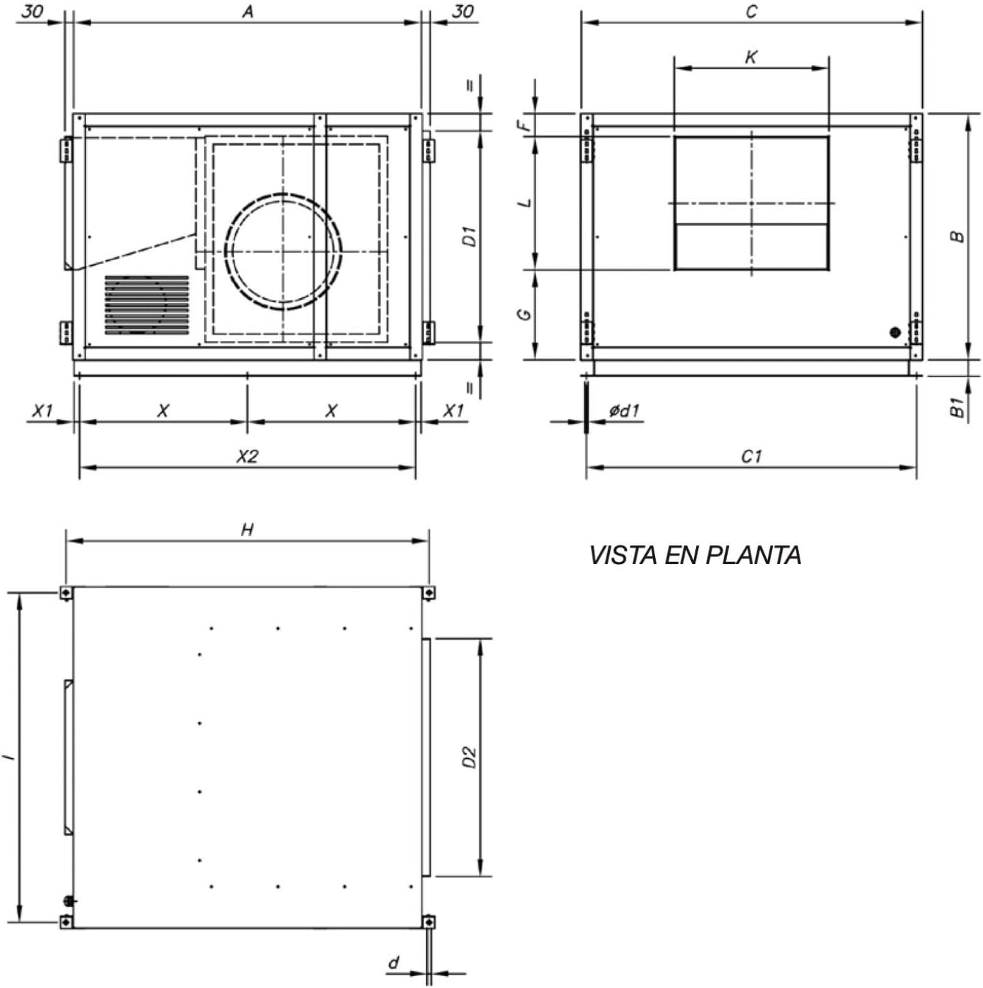
Figure 2: Technical Diagram with Dimensions of the Sodeca CJTX-C-7/7-0,75 Fan. This diagram provides detailed measurements and a top-down view untuk perancangan pemasangan.
4. Persediaan dan Pemasangan
Proper installation is critical for the fan's performance and safety. This unit must be installed by qualified professionals in accordance with all applicable local and national codes.
- lokasi: Position the fan in a stable, level location, ensuring it is outside the fire risk zone as per its design.
- Pemasangan: Secure the unit firmly to the mounting surface using appropriate fasteners. Refer to the technical diagram (Figure 2) for mounting points and overall dimensions (70 x 73 x 48 cm).
- Sambungan Saluran: Connect the inlet and outlet ductwork. Ensure all connections are airtight to prevent air leakage and maintain optimal performance. Verify the linear air flow direction.
- Sambungan Elektrik: Connect the fan to the appropriate three-phase power supply (230/400V-50Hz or 400/690V-50Hz) via a dedicated circuit breaker. Ensure proper grounding. All wiring must comply with local electrical codes.
- Semakan Pra-Operasi: Before starting, visually inspect all connections, ensure no foreign objects are inside the casing or ductwork, and confirm the impeller rotates freely.
5. Arahan Operasi
The Sodeca CJTX-C-7/7-0,75 fan is designed for continuous operation within its specified temperature ranges.
- Starting the Fan: Once installation is complete and all safety checks are performed, activate the power supply to the fan.
- Kawalan Kelajuan: Depending on the specific model, the fan may have 1 or 2 operating speeds. Adjust the speed as required for your ventilation needs.
- Pemantauan: During operation, periodically monitor the fan for unusual noises, vibrations, or changes in performance.
- Pengurusan Suhu: The fan is capable of handling air temperatures from -20°C to +120°C continuously (S1 service) and up to 300°C/2h or 400°C/2h for emergency smoke extraction (S2 service). Ensure the operating conditions do not exceed these limits.
- Stopping the Fan: To stop the fan, deactivate the power supply. For extended periods of non-use, it is recommended to disconnect the main power.
6. Penyelenggaraan
Regular maintenance ensures the longevity and optimal performance of your Sodeca fan. All maintenance procedures should be carried out by qualified technicians.
- Pemutusan Kuasa: Always ensure the fan is completely disconnected from the power supply and locked out before beginning any maintenance.
- Pembersihan Pendesak: Periodically inspect and clean the impeller blades to prevent dust and debris buildup, which can reduce efficiency and cause imbalance.
- Pemeriksaan Bearing: Check motor bearings for signs of wear or unusual noise. Lubricate if necessary, following manufacturer guidelines for the specific motor.
- Sambungan Elektrik: Pastikan semua sambungan elektrik kukuh dan bebas daripada kakisan.
- Casing Integrity: Inspect the galvanized steel casing for any signs of damage or corrosion. The anticorrosive finish helps protect the unit.
- Pemeriksaan Getaran: Monitor for excessive vibration, which could indicate an unbalanced impeller or worn bearings.
7. Penyelesaian masalah
This section provides basic troubleshooting steps for common issues. For complex problems, contact Sodeca technical support or a certified technician.
| Masalah | Kemungkinan Punca | Penyelesaian |
|---|---|---|
| Kipas tidak bermula | No power supply; tripped circuit breaker; faulty wiring; motor protection activated. | Check power supply; reset circuit breaker; inspect wiring (by qualified personnel); check motor overload protection. |
| Pengurangan aliran udara | Blocked inlet/outlet; dirty impeller; incorrect speed setting. | Clear obstructions; clean impeller; adjust speed setting. |
| Bunyi atau getaran yang berlebihan | Unbalanced impeller; worn bearings; loose mounting; foreign object in casing. | Inspect impeller for damage/debris; check bearings; tighten mounting bolts; remove foreign objects. Contact technician if problem persists. |
| Motor terlalu panas | Insufficient ventilation; motor overload; faulty motor. | Ensure adequate ventilation around motor; check for obstructions; consult technician for motor inspection. |
8. Spesifikasi
| Atribut | Nilai |
|---|---|
| Model | CJTX-C-7/7-0,75 |
| Nombor Rujukan | 1027931 |
| Dimensi (L x W x H) | 70 x 73 x 48 cm |
| Berat badan | 58 kg |
| Jenis Turbin | 7/7 inch, forward-curved blades |
| Motor Class | F |
| Perlindungan Motor | IP55 |
| Kecekapan Motor | IE3 (for powers ≥ 0.75kW, except single-phase, 2-speed, and 8-pole) |
| Bekalan Elektrik | Three-phase 230/400V-50Hz (up to 4kW), 400/690V-50Hz (above 4kW) |
| Aliran Udara Maksimum | 2450 m³/j |
| RPM | 1400 rpm |
| Continuous Operating Temperature (S1) | -20°C hingga +120°C |
| Emergency Operating Temperature (S2) | 300°C/2h and 400°C/2h |
| Pensijilan | EN 12101-3, No: 0370-CPR-0468 |
| Selesai | Anticorrosive galvanized steel |
9. Waranti dan Sokongan
For warranty information, technical support, or spare parts, please contact Sodeca customer service or your authorized dealer. Keep your purchase receipt and the product's model number (1027931) handy for faster service.
Sodeca is a specialist in the design and manufacture of fans and their accessories for industrial applications, ensuring high-quality products and support.




